Quadrilocale in vendita

Crescentino, Via Chio'
€ 79.000
4 locali 4 locali
86 Mq 86 Mq
1 bagno 1 bagno

Quadrilocale in vendita

Crescentino, Via Chio'

Descrizione annuncio

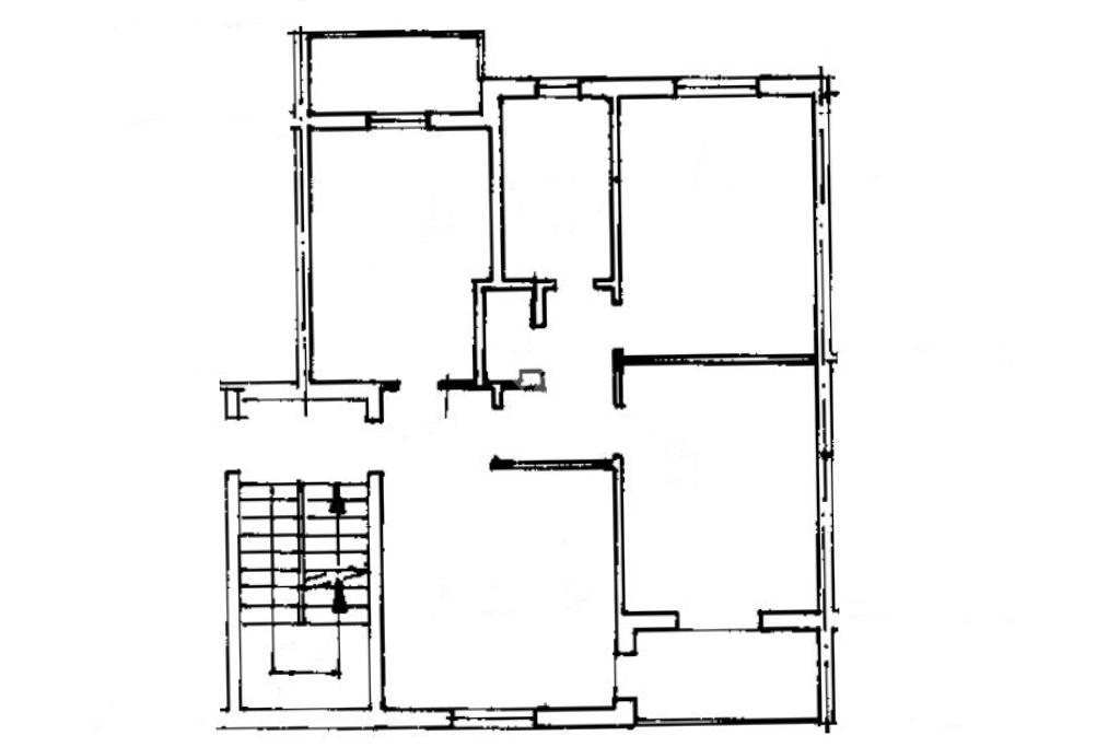
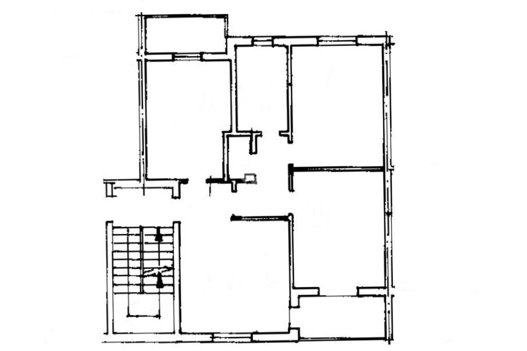
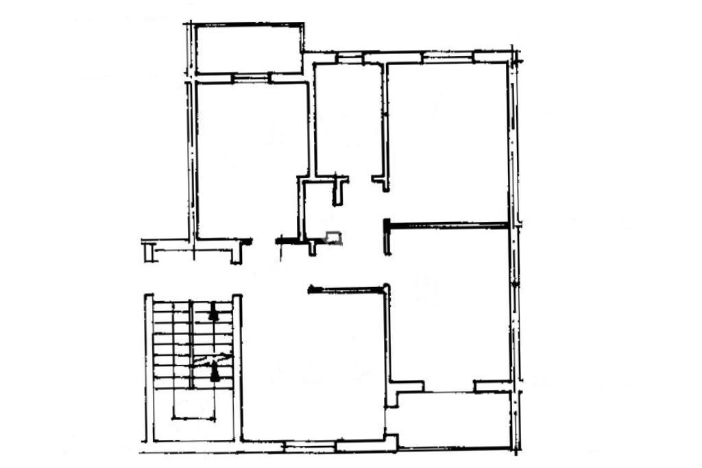
Nel cuore del paese appartamento situato all’ultimo piano di un edificio residenziale, caratterizzato da una superficie di 86 mq e da ambienti accoglienti e funzionali.
La zona giorno si articola tra soggiorno e cucina abitabile, mentre la zona notte offre due camere da letto spaziose; il bagno, curato nei dettagli, è dotato di una moderna doccia walk-in in vetro cristallo.
Due balconi permettono di godere di piacevoli spazi all’aperto.
L’abitazione è climatizzata e garantisce comfort in ogni stagione. Il riscaldamento invece è autonomo tramite caldaia a condensazione sostituita nel 2021.
A completare la proprietà vi sono un box auto e una cantina, oltre alla possibilità di usufruire di un orto condominiale.
La posizione centrale e la distribuzione razionale degli spazi rendono questa proposta particolarmente interessante.

Verifica catastale ed urbanistica in corso, per cui le foto, i dettagli e la descrizione sono puramente descrittivi.

Mostra tutto

Nelle vicinanze

Trasporto pubblico Trasporto pubblico
Crescentino
Crescentino
1,1 Km
Crescentino (P.za Marconi)
Crescentino (P.za Marconi)
510 m
Crescentino (v. Odetti/v. Giotto)
Crescentino (v. Odetti/v. Giotto)
540 m
Ricariche auto elettriche Ricariche auto elettriche
Municipio Di Crescentino
750 m
Scuole Scuole
Istituto Istruzione Superiore Piero Calamandrei
540 m
Istituto Istruzione superiore Piero Calamandrei
540 m
Istituto Comprensivo "Serra"- Scuola Primaria
950 m
Istituto Tecnico Commerciale Geometri "Piero Calamandrei" (Sez. Gemetri)
950 m
Scuola Secondaria di Primo Grado "A. Caretto"
1,2 Km
Farmacia Farmacia
Parafarmacia Conad
420 m
Supermercati Supermercati
Conad
440 m
Jing Fa
1,2 Km
Mercatò
1,2 Km
Bar Bar
Romeo - Bar Cremeria
630 m
Ristoranti Ristoranti
Il Portico - Ristorante / Pizzeria
730 m
Il Vichingo
1,0 Km
Ristoranti
1,8 Km
Ristorante Villa Rosa
1,9 Km
Mostra tutto

Caratteristiche

Rif.:
61144002
Piano:
3 di 3 (ultimo Piano)
Box:
1
Balconi:
2
Camere da letto:
2
Arredamento:
Assente
Mostra tutto
Prezzo Prezzo
€ 79.000
Rata mutuo Rata mutuo
€ 369 / mese
Spese annue Spese annue
€ 600
Proponi il tuo prezzoProponi il tuo prezzo

Classe Energetica

F
F
F
F
F
F
F
F
F
EP globale non rinnovabile:
155.23 kW h/m² anno
EP globale rinnovabile:
1.69 kW h/m² anno
EP invernale del fabbricato:
EP estiva del fabbricato:
Anno di costruzione:
1970
Riscaldamento:
Autonomo
Tipo impianto:
A radiatori
Tipo alimentazione:
Metano

Ti interessa visionare l'immobile?

Fissa un appuntamento  Fissa un appuntamento

Richiedi informazioni

Clicca su Leggi per aprire l'informativa
* Questi campi sono obbligatori

Calcola il tuo mutuo

Semplice e senza impegno
Anticipo

( % )
Mutuo

( % )

pochi semplici passi

inserisci i tuoi dati
Questionario completato
Grazie per aver richiesto un appuntamento senza impegno con un nostro Consulente del Credito e Assicurativo.

Hai inserito correttamente tutti i dati necessari e a breve riceverai una e-mail con un link da convalidare per inviare i tuoi dati.
Affiliato
Studio Crescentino Srl
P.zza Garibaldi, 26/28 13044 Crescentino (VC)

Il nostro staff


  • Elisa Lazzaretti
    Coordinatrice

  • Alessandro Tonon
    Affiliato

  • Camilla Borgo
    Responsabile

  • Edoardo Tonon
    Responsabile
P.zza Garibaldi, 26/28 13044 Crescentino (VC)
Zona: Crescentino–Saluggia-Lamporo–Brusasco-Gabiano–Verrua Savoia–Villamiroglio–Moncestino-Cerrina M.To
Mostra su mappa
Orari: Lun/Ven 9.00/12.30- 14.30/19.30 Sab 9.00/12-30
Affiliato
Studio Crescentino Srl
P.zza Garibaldi, 26/28 13044 Crescentino (VC)

2026 Tecnocasa Franchising S.p.A. - P. IVA 08365160152 - Via Monte Bianco 60/A 20089 Rozzano (MI). Ogni agenzia ha un proprio titolare ed è autonoma. Privacy policy | Policy utilizzo | Cookie policy